Terug naar resultaten

Utrecht – 2e Atjehstraat 45

€ 400.000,- k.k.

Over deze woning

In het bruisende Lombok bevindt zich deze instapklare benedenwoning met royale achtertuin, een plek waar je binnenkomt en je direct thuis voelt. De woonkamer is ruim en heerlijk licht, met plafonds van bijna 3 meter hoog die zorgen voor een extra gevoel van ruimte. De fraaie houten vloer en de open keuken maken dit een fijne leefruimte waar wonen, koken en ontspannen moeiteloos samenkomen.

De woning beschikt over een ruime slaapkamer met aansluitend een praktische kastenkamer, die zich ook perfect leent als aparte werkplek. Alles in de woning is met zorg onderhouden, waardoor je hier zonder enige werkzaamheden direct kunt intrekken.

De ligging van deze woning mag gerust een toplocatie worden genoemd. Op korte afstand vind je de levendige Kanaalstraat, bekend om haar mix van Turkse bakkers, delicatessenwinkels en speciaalzaken, waar je eigenlijk op ieder moment van de dag wel iets lekkers haalt. Ook in de directe omgeving is er volop keuze: van een goede kop koffie bij Koffie & Ik tot een hapje eten bij Buurten in de Fabriek of een avond borrelen bij Café Lombok.

Met De Munt direct om de hoek zit je bovendien zo aan het water, waar je in de zomer heerlijk kunt zitten en zelfs kunt zwemmen. Zowel Utrecht Centraal als de binnenstad bereik je in circa vijf minuten fietsen, waardoor je hier woont met alle stadse voorzieningen binnen handbereik.

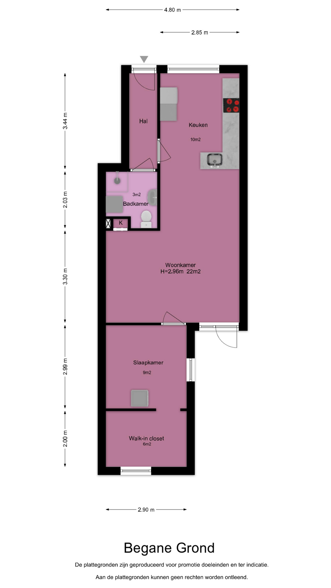
Indeling:
Via de entree kom je binnen in de hal, die toegang biedt tot de badkamer en de leefruimte. Zodra je de woonkamer instapt valt direct de hoogte en het licht op. Met plafonds van bijna 3 meter hoog en grote raampartijen aan zowel de voor- als achterzijde voelt de ruimte direct open en ruimtelijk aan.

De woonkamer is prettig ingedeeld en biedt volop ruimte voor zowel een zit- als eetgedeelte, waardoor het een heerlijke plek is om met vrienden en familie samen te komen. Aan de voorzijde bevindt zich de open keuken, uitgevoerd in een strakke opstelling met voldoende werk- en bergruimte en een gezellige bar waar je gemakkelijk aanschuift voor een kop koffie, een snelle lunch of een goed glas wijn terwijl er gekookt wordt.

Aan de achterzijde is het zitgedeelte gesitueerd, waar de deur naar de tuin zorgt voor een fijne overgang naar buiten. De combinatie van de houten vloeren, de hoogte en het daglicht maakt dit een sfeervolle leefruimte waar je moeiteloos schakelt tussen levendige momenten en ontspannen avonden.

De slaapkamer is rustig gelegen en goed bemeten, met voldoende ruimte voor een tweepersoonsbed en kasten. Ook hier zorgen de hoge plafonds en het prettige licht voor een fijne, ontspannen sfeer.

Aansluitend bevindt zich een aparte kamer, die momenteel is ingericht als walk-in closet. Een luxe toevoeging met volop opbergruimte, waardoor de slaapkamer zelf rustig en overzichtelijk blijft. Dankzij de indeling en het formaat leent deze ruimte zich echter ook uitstekend als werk- of studeerkamer, ideaal voor wie thuis werkt of een extra kamer kan gebruiken.

De badkamer is praktisch ingedeeld en voorzien van een douche, wastafelmeubel, toilet en aansluitingen voor wasmachine en droger. Boven de gehele badkamer is opbergruimte aanwezig.

De achtertuin van ca. 35 m² vormt een fijne verlenging van de leefruimte en is bereikbaar vanuit de woonkamer. De tuin is verzorgd aangelegd en biedt voldoende ruimte voor een comfortabele zithoek en een tuintafel. Dankzij de beschutte ligging en de groene erfafscheidingen voelt het hier prettig privé aan en is dit op warme dagen dé plek om met een hapje en een drankje te genieten van het weer.

Bijzonderheden:
– Instapklare benedenwoning in het populaire Lombok;
– Royale achtertuin van ca. 35 m²;
– Ruime en lichte woonkamer met plafonds van ca. 3 meter hoog;
– Grote raampartijen aan voor- en achterzijde;
– Fraaie houten vloeren in de leefruimte;
– Open keuken met bar;
– Aparte kamer / walk-in closet, ook geschikt als werkkamer;
– Opbergruimte boven de gehele badkamer;
– Gelegen nabij diverse gezellige horecagelegenheden;
– Op korte afstand van De Munt waar je zomers kunt zwemmen;
– Utrecht Centraal en binnenstad op ca. 5 minuten fietsen;
– In de koopakte worden een asbestclausule en ouderdomsclausule opgenomen.

Meer lezen

Kenmerken

Financieel
Status
Beschikbaar
Prijs
€ 400.000,- k.k.
Bouw
Soort bouw
Bouwjaar
1904
Oppervlakten en inhoud
Woonoppervlakte
55 m2
Gebouwgebonden buitenruimte
0 m2
Inhoud
209 m3
Indeling
Aantal kamers
3
Aantal badkamers
1
Aantal slaapkamers
1
Woonlagen
1
Energie en isolatie
Energieklasse
E
Warmwater
CV ketel
Verwarming
CV ketel
Isolatie
Dubbelglas
Einddatum
27 februari 2027
Buitenruimte
Achterom
Nee
Type buitenruimte
0 m2
Bergruimte
Soort
Voorzieningen
Ligging
Parkeer faciliteiten
Betaald parkeren, Parkeervergunningen
Ligging
Aan rustige weg, In woonwijk
Onderhoud waardering
Binnen
Goed
Buiten
Goed

Bezichtiging aanvragen

    Van Doorn Makelaardij Utrecht

    Al 80 jaar is Van Doorn Makelaardij een begrip in Utrecht en omstreken. Ons team bestaat uit enthousiaste, betrokken en deskundige makelaars die alles afweten van de Utrechtse woningmarkt. We zijn aangesloten bij het NVM en beheersen alle facetten van het makelaarsvak. U kunt bij ons dan ook terecht voor het kopen, verkopen én taxeren van woningen in Utrecht.

    Makelaar Utrecht

    Onze diensten

    Over Van Doorn

    Contactgegevens

    Van Doorn Makelaardij Utrecht
    Poortstraat 49
    3572 HC Utrecht

    T: 030 276 9000
    W: 06 58 91 06 75
    E: info@van-doorn.nl

    Openingstijden

    Maandag: 09:00 tot 17:30
    Dinsdag: 09:00 tot 17:30
    Woensdag: 09:00 tot 17:30
    Donderdag: 09:00 tot 17:30
    Vrijdag: 09:00 tot 17:30

    © 2026 Alle rechten voorbehouden | Powered by iClicks