Terug naar resultaten

Utrecht – Goedestraat 33BS

€ 675.000,- k.k.

Over deze woning

In misschien wel de populairste wijk van Utrecht – het altijd levendige en charmante Wittevrouwen – komt deze absolute parel van een woning beschikbaar, mét een groot en zonnig dakterras. Dit is er zo één waar je meteen blij van wordt.

In 2020 is de eerste verdieping volledig gerenoveerd, en dat is te zien én te voelen. Kosten noch moeite zijn gespaard om hier iets bijzonders van te maken: van de prachtige houten visgraatvloer tot de luxe keuken met kookeiland waar koken vanzelf een feestje wordt. En alsof dat nog niet genoeg is, is ook het riante dakterras volledig vernieuwd – perfect voor lange zomeravonden. De woning zelf biedt daarnaast alle ruimte met drie slaapkamers, een vide, een badkamer met ligbad om even helemaal tot rust te komen, en verrassend veel praktische bergruimte. Kortom: een sfeervol, stijlvol en comfortabel huis op een toplocatie in Utrecht, met alles wat je maar kunt wensen.

En die toplocatie mag er zijn. Wittevrouwen is levendig, charmant en helemaal van nu. Je woont hier in een sfeervolle buurt vol karakter, met het centrum van Utrecht op nog geen vijf minuten fietsen. De Biltstraat – letterlijk om de hoek – barst van de gezellige cafés, speciaalzaken en fijne eetplekken. Wie even wil ontsnappen aan de stadsdrukte, wandelt zo naar het Griftpark: dé plek om te relaxen in het gras, te sporten of gewoon mensen te kijken. Voor een borrel of een avond uit schuif je aan bij Goesting of Lokaal Wittevrouwen, en voor die ultieme traktatie mag een ijsje van Roberto Gelato natuurlijk niet ontbreken. Alles ligt hier binnen handbereik – met precies die stadse vibe die het leven in Utrecht zo aantrekkelijk maakt.

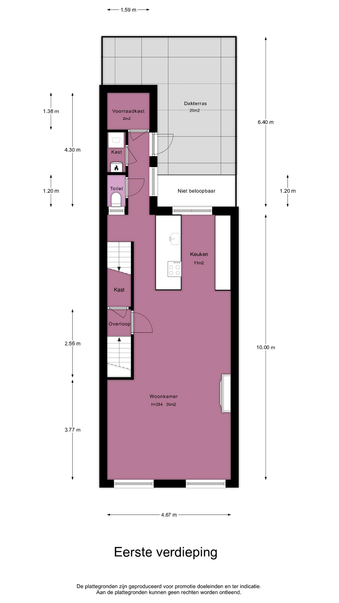
Indeling:

Begane grond:
Entree, trapopgang naar eerste verdieping.

Eerste verdieping:
Via de stijlvolle zwarte stalen deur stap je de royale leefruimte met open keuken binnen – een plek die direct indruk maakt. Het afwerkingsniveau is om door een ringetje te halen: een prachtige visgraatvloer vormt de basis, terwijl sfeervolle details zoals de werkende haard en de authentieke glas-in-loodramen de ruimte karakter en warmte geven. Dankzij de grote raampartijen aan beide zijden van de kamer baadt de ruimte in het daglicht, wat zorgt voor een lichte, uitnodigende sfeer. Er is meer dan genoeg plek voor een comfortabele zithoek én een grote eettafel – ideaal voor gezellige borrels en lange diners met vrienden en familie.

De absolute eyecatcher is de luxe keuken met kookeiland, voorzien van alle denkbare gemakken. Met onder andere een Quooker, een inductiekookplaat met ingebouwde afzuiging, een dubbele oven en volop praktische berg- en werkruimte is koken hier een feest. De stijlvolle afwerking sluit naadloos aan op de rest van het interieur en maakt het geheel helemaal af.

Verder vind je op deze etage een keurig toilet, een praktische voorraadkast, een handige bergkast én een aparte kast met wasmachineaansluiting.

Tweede verdieping:
De tweede verdieping is afgewerkt met een fraaie houten vloer die naadloos doorloopt in alle ruimtes. Via de overloop bereik je drie slaapkamers, de badkamer en de trap naar de vide. Alle slaapkamers zijn aangenaam licht. De grootste slaapkamer, gelegen aan de achterzijde van de woning, biedt volop ruimte voor een comfortabel tweepersoonsbed en een grote kledingkast.

De keurige badkamer is uitgerust met een heerlijk ligbad, een grote inloop(regen)douche, een dubbele wastafel met stijlvol meubel en een toilet.

Derde verdieping:
Op de derde verdieping vind je een royale vide. Deze open ruimte is perfect te gebruiken als werkkamer, waar je in alle rust kunt werken.

Buitenruimte:
De woning beschikt over een heerlijk dakterras van ca. 20m2, een privé plek om te genieten van de zon en de buitenlucht. Er is meer dan genoeg ruimte voor een comfortabele loungehoek en een gezellige tuintafel. Met lekker weer is dit de ideale plek om te ontspannen, een boek te lezen of met vrienden en familie te genieten van een hapje en een drankje.

Bijzonderheden:
– Gelegen in de populaire wijk Wittevrouwen, op minder dan vijf minuten fietsen van het centrum van Utrecht;
– Groot en zonnig dakterras van ca. 20m2, perfect voor lange zomeravonden;
– Eerste verdieping in 2020 volledig gerenoveerd, met onder andere een luxe keuken met kookeiland en prachtige houten visgraatvloer;
– Luxe keuken met kookeiland en met Quooker, inductiekookplaat met ingebouwde afzuiging, dubbele oven en veel werk- en bergruimte;
– Royale en lichte leefruimte met werkende haard en authentieke glas-in-loodramen;
– Drie slaapkamers en een Vide;
– Een ruime badkamer met ligbad en grote inloop(regen)douche;
– Veel praktische bergruimte;
– Nabij winkels, horeca en uitvalswegen;
– In de koopakte worden een asbestclausule en ouderdomsclausule opgenomen.

Meer lezen

Kenmerken

Financieel
Status
Verkocht
Prijs
€ 675.000,- k.k.
Bouw
Soort bouw
Bouwjaar
1860
Oppervlakten en inhoud
Woonoppervlakte
101 m2
Gebouwgebonden buitenruimte
20 m2
Inhoud
372 m3
Indeling
Aantal kamers
5
Aantal badkamers
1
Aantal slaapkamers
4
Woonlagen
3
Energie en isolatie
Energieklasse
F
Warmwater
CV ketel
Verwarming
CV ketel
Isolatie
Dubbelglas
Einddatum
3 februari 2030
Buitenruimte
Achterom
Nee
Type buitenruimte
20 m2
Bergruimte
Soort
Voorzieningen
Ligging
Parkeer faciliteiten
Betaald parkeren, Parkeervergunningen
Ligging
Aan rustige weg, In woonwijk
Onderhoud waardering
Binnen
Goed tot uitstekend
Buiten
Goed tot uitstekend

Bezichtiging aanvragen

    Van Doorn Makelaardij Utrecht

    Al 80 jaar is Van Doorn Makelaardij een begrip in Utrecht en omstreken. Ons team bestaat uit enthousiaste, betrokken en deskundige makelaars die alles afweten van de Utrechtse woningmarkt. We zijn aangesloten bij het NVM en beheersen alle facetten van het makelaarsvak. U kunt bij ons dan ook terecht voor het kopen, verkopen én taxeren van woningen in Utrecht.

    Makelaar Utrecht

    Onze diensten

    Over Van Doorn

    Contactgegevens

    Van Doorn Makelaardij Utrecht
    Poortstraat 49
    3572 HC Utrecht

    T: 030 276 9000
    W: 06 58 91 06 75
    E: info@van-doorn.nl

    Openingstijden

    Maandag: 09:00 tot 17:30
    Dinsdag: 09:00 tot 17:30
    Woensdag: 09:00 tot 17:30
    Donderdag: 09:00 tot 17:30
    Vrijdag: 09:00 tot 17:30

    © 2026 Alle rechten voorbehouden | Powered by iClicks