Terug naar resultaten

Utrecht – Iepstraat 7

€ 549.000,- k.k.

Over deze woning

Instapklare woning met karakter en energielabel A in hartje Oudwijk

In een van de meest geliefde wijken van Utrecht wacht deze charmante woning met zonnige tuin op nieuwe bewoners. Zodra je binnenstapt proef je de charme van dit huis, met prachtige glas-in-lood ramen, hoge plafonds en warme houten vloeren als enkele van de blikvangers. De ruime en lichte woonkamer, de strakke keuken, drie slaapkamers, een badkamer met ligbad én een praktische bijkeuken maken dit tot een huis dat werkelijk alles biedt.

Ook de ligging is onovertroffen. Oudwijk staat bekend om zijn sfeervolle straten, groene karakter en sterke buurtgevoel. Hier woon je rustig en toch centraal, op loopafstand van het Wilhelminapark en het bruisende stadscentrum. Gezellige cafés, uitstekende restaurants, sportfaciliteiten en winkels voor de dagelijkse boodschappen liggen allemaal letterlijk om de hoek. Ook de bereikbaarheid is ideaal: je fietst in een paar minuten naar het station en de uitvalswegen zijn met de auto in enkele minuten te bereiken.

Kortom: Een fantastische woning op een geweldige locatie!

Indeling:

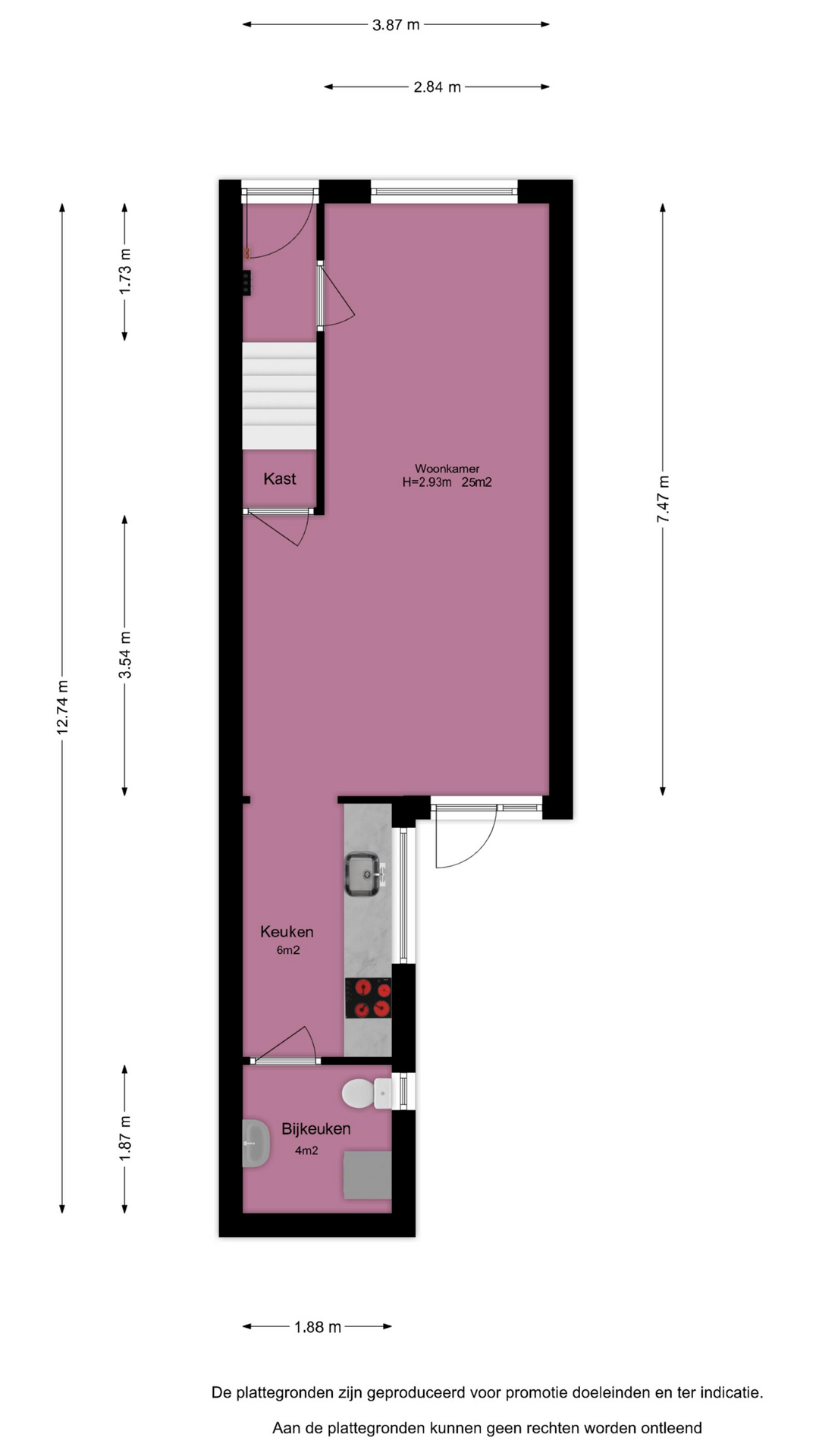
Begane grond:
Je komt binnen in de gang die toegang biedt tot de trap naar de eerste etage en de woon-/eetkamer. Hier vallen direct de bijna drie meter hoge plafonds en de grote raampartijen op, die de ruimte een indrukwekkend licht en open karakter geven. De warme houten vloer en het kleurrijke glas-in-lood bovenraam aan de voorzijde voegen een vleugje charme en authenticiteit toe. Dankzij de royale afmetingen is er plaats genoeg voor zowel een gezellige zithoek als een lange eettafel waar vrienden en familie graag aanschuiven. Op zomerse dagen zet je de deuren naar de tuin open en geniet je van het ultieme binnen-buitengevoel.

Aansluitend aan de woonkamer ligt de keuken, uitgevoerd met een donker natuurstenen blad en kasten in een tijdloze, lichte tint. Alle benodigde inbouwapparatuur is aanwezig en er is volop werk- en bergruimte. Als extra pluspunt is de keuken voorzien van vloerverwarming.

Achter de keuken ligt de bijkeuken met wc. Hier zijn de aansluitingen voor wasmachine en droger te vinden en is bovendien ruimte voor een extra vriezer of zelfs wijnklimaatkast.

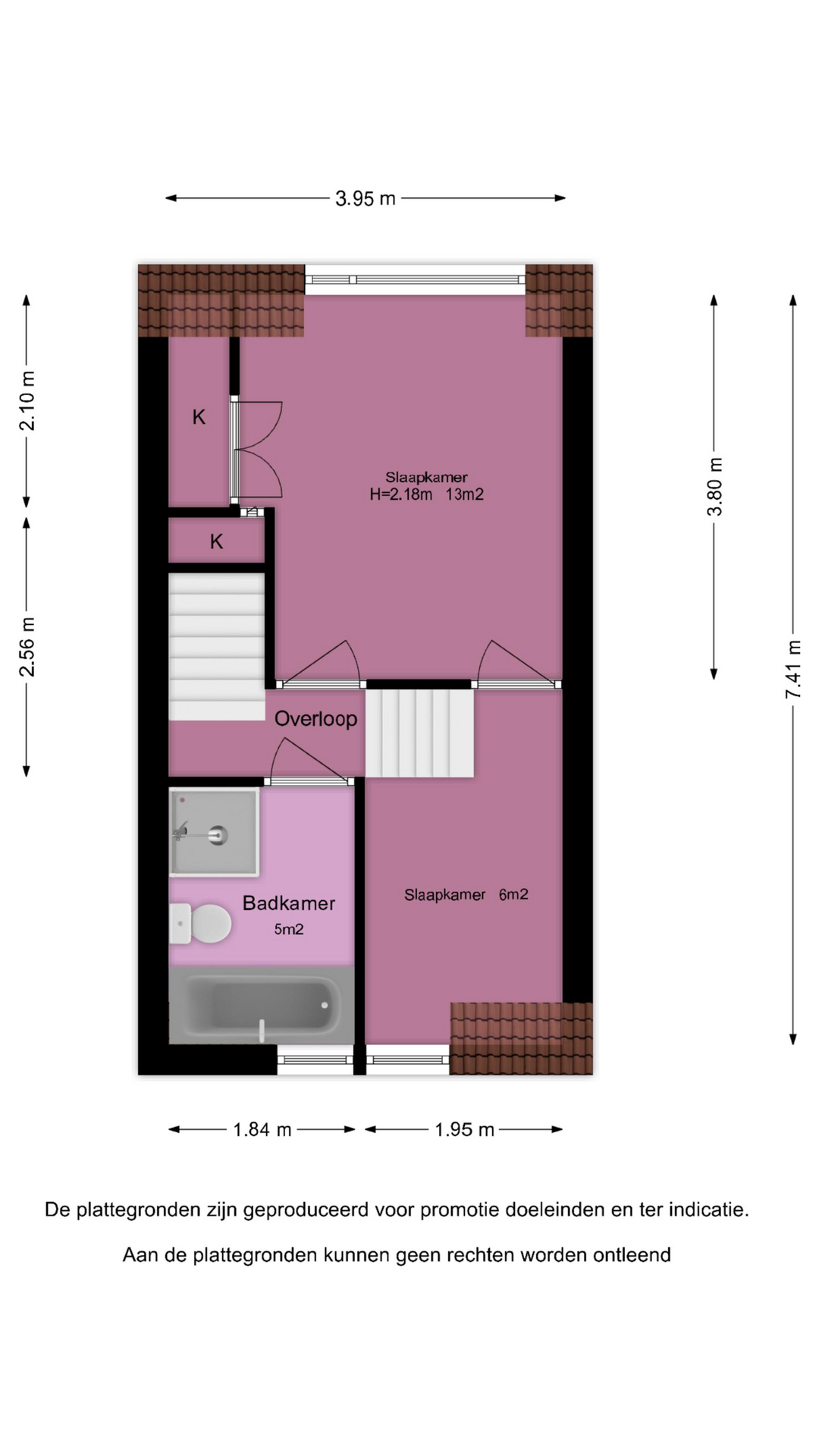
Eerste verdieping:
De overloop geeft toegang tot de eerste twee slaapkamers en de badkamer. Beide kamers zijn aangenaam licht en afgewerkt met een warme laminaatvloer. De grootste slaapkamer beschikt over praktische ingebouwde kasten. De tweede kamer leent zich ook uitstekend leent als werk-, kinder,- of hobbykamer.

De badkamer is keurig afgewerkt en biedt alle comfort: een ligbad om heerlijk in te ontspannen, een aparte douche, een wastafel met stijlvol meubel en een toilet. Dankzij de vloerverwarming is het hier altijd comfortabel warm.

Tweede verdieping:
Op deze verdieping ligt de derde, ruime slaapkamer. Ook deze kamer profiteert van veel lichtinval en biedt daarnaast volop bergruimte achter de knieschotten.

Tuin:
De woning beschikt over een fijne tuin op het zuidwesten. Zodra het weer het toelaat is dit dé plek om te genieten van de zon, of je nu ontspant met een boek of vrienden uitnodigt voor een borrel.

Bijzonderheden:
– Gelegen in Oudwijk, een van de meest geliefde wijken van Utrecht;
– Zonnige tuin op het zuidwesten;
– Energielabel A;
– Karaktervolle details: glas-in-lood ramen, hoge plafonds (bijna 3 meter) en houten vloeren;
– Ruime en lichte woon-/eetkamer met openslaande deuren naar de tuin;
– Keuken met donker natuurstenen blad, lichte kasten, inbouwapparatuur en vloerverwarming;
– Drie slaapkamers;
– Badkamer met ligbad en vloerverwarming;
– Uitbouw voorzien van sedumdak;
– Centrale ligging: op loopafstand van Wilhelminapark en stadscentrum, cafés, restaurants en winkels;
– In de koopakte worden een asbestclausule en ouderdomsclausule opgenomen.

Meer lezen

Kenmerken

Financieel
Status
Verkocht
Prijs
€ 549.000,- k.k.
Bouw
Soort bouw
Eengezinswoning
Bouwjaar
1906
Oppervlakten en inhoud
Woonoppervlakte
77 m2
Gebouwgebonden buitenruimte
0 m2
Inhoud
263 m3
Indeling
Aantal kamers
4
Aantal badkamers
1
Aantal slaapkamers
3
Woonlagen
Energie en isolatie
Energieklasse
A
Warmwater
CV ketel
Verwarming
CV ketel
Isolatie
Dakisolatie, Muurisolatie, Vloerisolatie, HR glas
Einddatum
24 september 2035
Buitenruimte
Achterom
Nee
Type buitenruimte
0 m2
Bergruimte
Soort
Vrijstaand hout
Voorzieningen
Ligging
Parkeer faciliteiten
Betaald parkeren, Parkeervergunningen
Ligging
Aan rustige weg, In woonwijk
Onderhoud waardering
Binnen
Goed
Buiten
Goed

Bezichtiging aanvragen

    Van Doorn Makelaardij Utrecht

    Al 79 jaar is Van Doorn Makelaardij een begrip in Utrecht en omstreken. Ons team bestaat uit enthousiaste, betrokken en deskundige makelaars die alles afweten van de Utrechtse woningmarkt. We zijn aangesloten bij het NVM en beheersen alle facetten van het makelaarsvak. U kunt bij ons dan ook terecht voor het kopen, verkopen én taxeren van woningen in Utrecht.

    Makelaar Utrecht

    Onze diensten

    Over Van Doorn

    Contactgegevens

    Van Doorn Makelaardij Utrecht
    Poortstraat 49
    3572 HC Utrecht

    T: 030 276 9000
    W: 06 58 91 06 75
    E: info@van-doorn.nl

    Openingstijden

    Maandag: 09:00 tot 17:30
    Dinsdag: 09:00 tot 17:30
    Woensdag: 09:00 tot 17:30
    Donderdag: 09:00 tot 17:30
    Vrijdag: 09:00 tot 17:30

    © 2026 Alle rechten voorbehouden | Powered by iClicks