Terug naar resultaten

Utrecht – Korte Jansstraat 3B

€ 499.000,- k.k.

Over deze woning

In hartje centrum Utrecht, met uitzicht op de Domkerk en het Oudkerkhof, komt dit uitstekend onderhouden en sfeervolle appartement vrij. Gelegen op de eerste etage van een historisch pand waarin in 2004 nieuwbouwappartementen zijn gerealiseerd. De woning ademt karakter en kwaliteit; fraaie details zoals de hoge plafonds (3 meter) en stijlvolle paneeldeuren geven het geheel een unieke charme. Dankzij de grote raampartijen in alle ruimtes is het appartement bovendien bijzonder licht. Het appartement biedt een ruime woon-/eetkamer, een moderne keuken, een luxe badkamer, een royale slaapkamer en een berging in de onderbouw.

De ligging van dit appartement aan de Korte Jansstraat is werkelijk fantastisch. Deze bruisende straat biedt een levendige mix van alles wat het centrum van Utrecht zo bijzonder maakt. Direct voor de deur vindt u een breed scala aan voorzieningen, zoals sfeervolle boetieks, gezellige cafés en diverse restaurants. Ook de cultuur komt hier volop tot zijn recht, met theaters, musea en muziekpodia op steenworp afstand. De historische charme van de straat, met haar prachtige panden en directe nabijheid van de sfeervolle Utrechtse grachten, maakt het een ideale plek om van het stadsleven te genieten. Vanuit uw raam heeft u bovendien een prachtig uitzicht op de levendigheid van de straat, waar altijd iets te beleven valt. Daarnaast zijn de verbindingen met het openbaar vervoer uitstekend: op nog geen twee minuten lopen vindt u diverse bushaltes, en het centraal station ligt op korte wandelafstand.

Kortom: Een heerlijk appartement op een fantastische locatie!

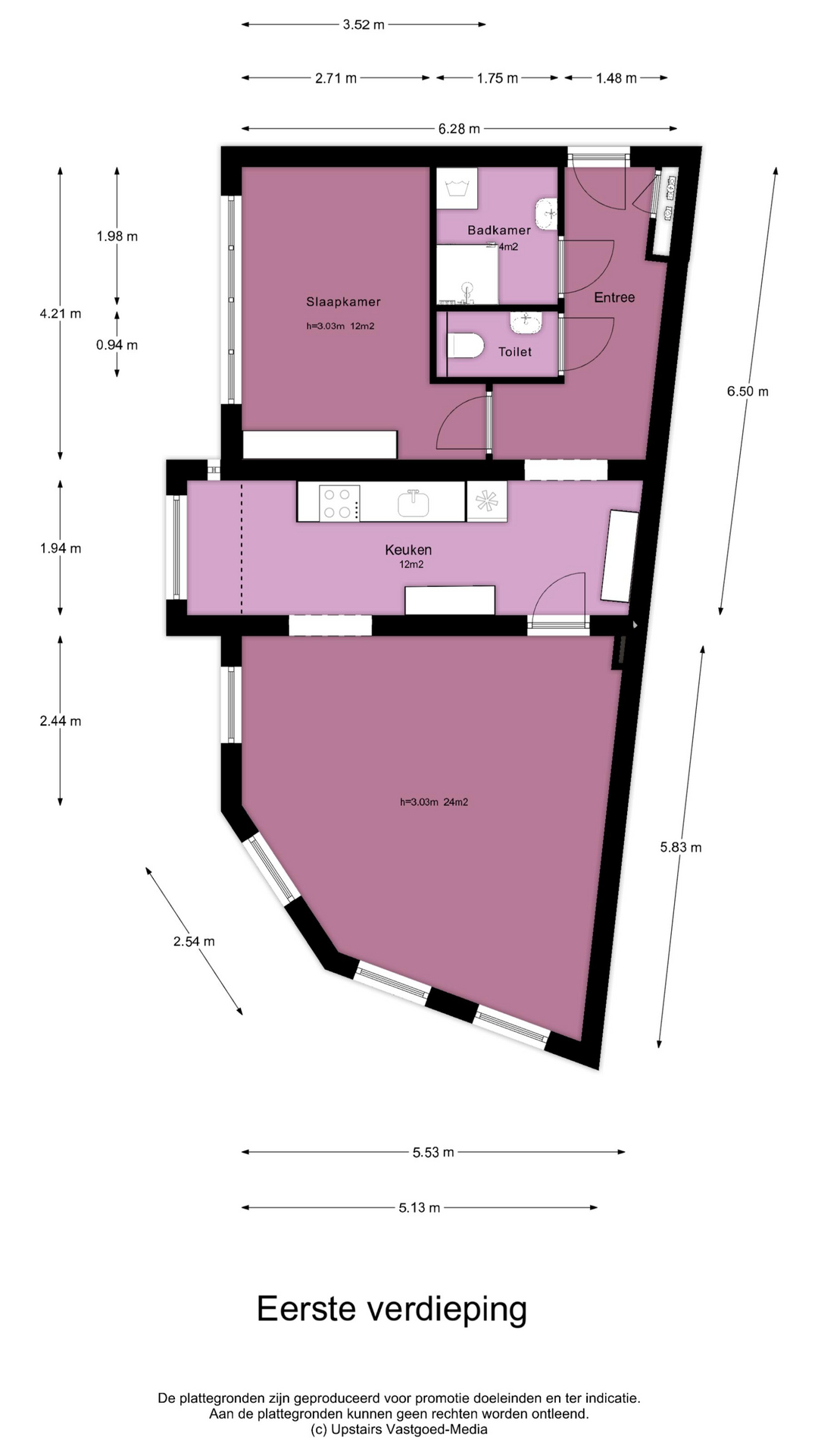
Indeling:

Begane grond:
Gemeenschappelijke entree met bellentableau, toegang tot trappenhuis, lift en bergingen.

Eerste etage:
Bij binnenkomst in het appartement komt u in de gang, waar voldoende ruimte is voor een garderobe. Vanuit deze centrale gang heeft u toegang tot alle vertrekken van de woning.

Aan de voorzijde van het appartement bevindt zich de ruime woon-/eetkamer. Deze lichte ruimte wordt overspoeld met daglicht dankzij de grote raampartijen. Het uitzicht vanuit deze kamer is werkelijk uniek: u kijkt uit op de iconische Domkerk en de levendige Korte Jansstraat. Het is heerlijk om hier in het raam te zitten en te genieten van het bruisende straatleven en de historische charme van de omgeving. Met plafonds van maar liefst ca.3,03 meter hoog en royale raampartijen voelt de kamer ruim en luchtig aan. Er is volop ruimte voor een comfortabele zithoek en een grote eettafel, perfect om gasten te ontvangen en te genieten van gezellige diners.

In het midden van het appartement bevindt zich de luxe keuken, die werkelijk van alle gemakken is voorzien. De keuken is uitgerust met diverse inbouwapparatuur, waaronder een vaatwasser, en biedt volop praktische berg- en werkruimte. De strakke, tijdloze uitvoering van de keuken geeft de ruimte een moderne en stijlvolle uitstraling.

De slaapkamer bevindt zich aan de rechterzijde bij binnenkomst. Net als de rest van het appartement is ook deze kamer heerlijk licht dankzij de royale raampartijen. De ruimte is ruim opgezet en biedt voldoende plaats voor een comfortabel tweepersoonsbed en een grote kledingkast.

De badkamer is modern en compleet uitgerust met een inloopdouche, een wastafel met bijpassend wastafelmeubel, een designradiator en aansluitingen voor een wasmachine en droger. Het toilet bevindt zich apart van de badkamer.

Bijzonderheden:
– Instapklaar 2-kamerappartement in hartje centrum;
– Plafonds van ca. 3,03m hoog;
– Moderne keuken en badkamer;
– Voorzien van berging;
– Voorzien van monumentenglas;
– Fraai uitzicht op Oudkerkhof en de Domkerk;
– Actieve en gezonde VvE;
– Monumentaal pand (appartementen gerealiseerd in 2004);
– In de koopovereenkomst zullen een asbestclausule, ouderdomsclausule en niet-zelfbewoningsclausule worden opgenomen.

Meer lezen

Kenmerken

Financieel
Status
Verkocht
Prijs
€ 499.000,- k.k.
Bouw
Soort bouw
Bouwjaar
1890
Oppervlakten en inhoud
Woonoppervlakte
68 m2
Gebouwgebonden buitenruimte
0 m2
Inhoud
242 m3
Indeling
Aantal kamers
2
Aantal badkamers
1
Aantal slaapkamers
1
Woonlagen
1
Energie en isolatie
Energieklasse
Warmwater
Stadsverwarming
Verwarming
Stadsverwarming
Isolatie
Dubbelglas
Einddatum
Buitenruimte
Achterom
Nee
Type buitenruimte
0 m2
Bergruimte
Soort
Inpandig
Voorzieningen
Ligging
Parkeer faciliteiten
Betaald parkeren, Parkeervergunningen
Ligging
In centrum
Onderhoud waardering
Binnen
Goed
Buiten
Goed tot uitstekend

Bezichtiging aanvragen

    Van Doorn Makelaardij Utrecht

    Al 79 jaar is Van Doorn Makelaardij een begrip in Utrecht en omstreken. Ons team bestaat uit enthousiaste, betrokken en deskundige makelaars die alles afweten van de Utrechtse woningmarkt. We zijn aangesloten bij het NVM en beheersen alle facetten van het makelaarsvak. U kunt bij ons dan ook terecht voor het kopen, verkopen én taxeren van woningen in Utrecht.

    Makelaar Utrecht

    Onze diensten

    Over Van Doorn

    Contactgegevens

    Van Doorn Makelaardij Utrecht
    Poortstraat 49
    3572 HC Utrecht

    T: 030 276 9000
    W: 06 58 91 06 75
    E: info@van-doorn.nl

    Openingstijden

    Maandag: 09:00 tot 17:30
    Dinsdag: 09:00 tot 17:30
    Woensdag: 09:00 tot 17:30
    Donderdag: 09:00 tot 17:30
    Vrijdag: 09:00 tot 17:30

    © 2026 Alle rechten voorbehouden | Powered by iClicks