Terug naar resultaten

Utrecht – Merwedekade 131BS

€ 450.000,- k.k.

Over deze woning

Jaren ’30-woning met balkon en prachtig uitzicht op het water

Aan de Merwekade ligt deze instapklare bovenwoning uit de jaren ’30, waar je elke dag wordt getrakteerd op een schitterend uitzicht over het water. Een heerlijke plek om thuis te komen en volop te genieten van alles wat het huis én de omgeving te bieden hebben.

Met een woonoppervlak van circa 85 m² vind je hier alles wat je maar kunt wensen. Een ruime en lichte woon-/eetkamer, een moderne open keuken, drie slaapkamers, een nette badkamer en een separaat toilet. Het balkon aan de achterzijde maakt het geheel compleet: een heerlijke plek om van het buiten leven te genieten.

Omgeving
De woning bevindt zich in de Rivierenwijk, en is onderdeel van de Merwedekanaalzone. Rivierenwijk is een levendige en populaire buurt met alle dagelijkse voorzieningen binnen handbereik. Langs de Rijnlaan en de Balijelaan vind je diverse winkels en supermarkten, terwijl je op het Ledig Erf en aan de Veilinghaven volop gezellige horeca en fijne eetgelegenheden hebt. Rotsoord bevindt zich eveneens op steenworp afstand en staat bekend om zijn hippe restaurants, creatieve werkplekken en levendige terrassen aan het water – een ideale plek om te borrelen of uitgebreid te dineren. Daarnaast fiets of wandel je in slechts enkele minuten naar Utrecht Centraal Station én de binnenstad. Naast dit alles ben je met een paar minuten rijden bij diverse grote uitvalswegen.

Indeling
Begane grond:
Eigen entree met trapopgang naar de eerste verdieping.

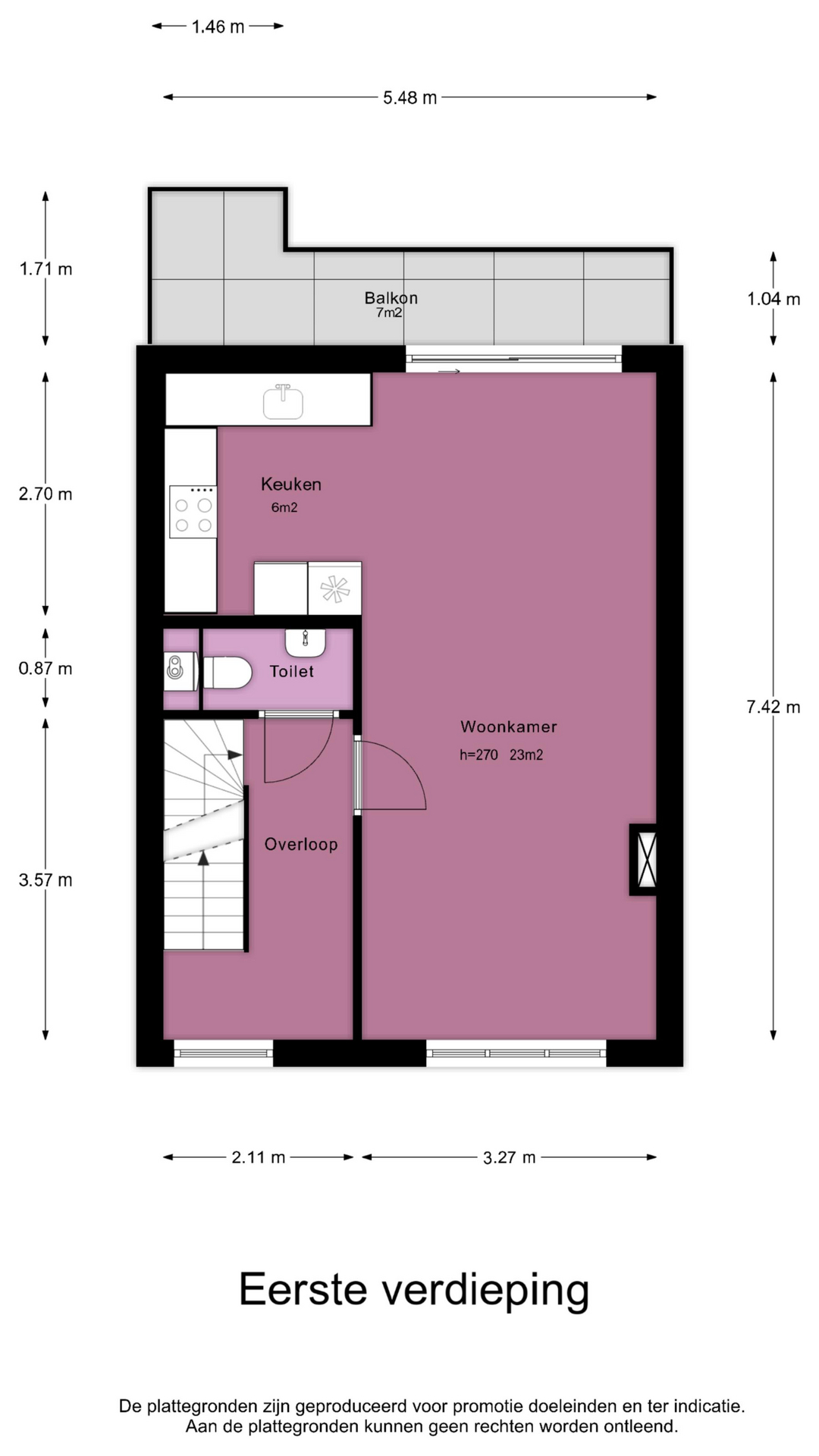
Eerste verdieping:
De overloop biedt toegang tot de trap naar de tweede etage, het keurige toilet (vernieuwd in 2024) en de royale leefruimte met open keuken.

De woonkamer is een heerlijk lichte en uitnodigende plek, waar de grote raampartijen het zonlicht rijkelijk naar binnen laten stromen en je tegelijkertijd een prachtig uitzicht hebt over het water. De ruimte is afgewerkt met een stijlvolle parketvloer met houten toplaag die warmte en karakter toevoegt. Aan de achterzijde bevindt zich een grote schuifpui naar het balkon; met zonnig weer zet je deze wagenwijd open en geniet je van het ultieme binnen-buitengevoel. Het balkon zelf is de perfecte plek om neer te strijken met een hapje en een drankje, terwijl je geniet van het lekkere weer.

Grenzend aan de woonkamer vind je de moderne keuken, die werkelijk van alle gemakken is voorzien. Hier kook je met plezier dankzij de hoogwaardige inbouwapparatuur, de overvloed aan werkruimte en de slimme opbergmogelijkheden. De strakke en tijdloze afwerking sluit naadloos aan bij de stijl van de woning en maakt het geheel helemaal af.

Tweede verdieping:
Via de overloop, met een handige ingebouwde kast met wasmachine-aansluiting, bereik je de drie slaapkamers en de badkamer. Alle slaapkamers zijn aangenaam licht en praktisch in te delen. De twee grootste kamers bieden ruimschoots plek voor een comfortabel tweepersoonsbed én een royale kastenwand. De kamer aan de voorzijde beschikt bovendien over een praktische inbouwkast. De derde kamer is wat kleiner, maar juist daardoor ideaal als werkkamer, logeerkamer of creatieve hobbyruimte.

De keurige badkamer is voorzien van een douche, wastafel en designradiator.

Bijzonderheden:
– Karaktervolle bovenwoning uit de jaren ’30;
– Woonoppervlakte circa 85 m²;
– Drie slaapkamers;
– Balkon aan de achterzijde;
– Uitzicht op het water;
– Goede staat van onderhoud, zowel binnen als buiten;
– Gezonde VvE (bijdrage €80,- per maand);
– In de koopakte worden de ouderdomsclausule en asbestclausule opgenomen.

Meer lezen

Kenmerken

Financieel
Status
Verkocht
Prijs
€ 450.000,- k.k.
Bouw
Soort bouw
Bouwjaar
1930
Oppervlakten en inhoud
Woonoppervlakte
85 m2
Gebouwgebonden buitenruimte
7 m2
Inhoud
287 m3
Indeling
Aantal kamers
4
Aantal badkamers
1
Aantal slaapkamers
3
Woonlagen
2
Energie en isolatie
Energieklasse
D
Warmwater
CV ketel
Verwarming
CV ketel
Isolatie
Dakisolatie, HR glas
Einddatum
23 februari 2027
Buitenruimte
Achterom
Nee
Type buitenruimte
7 m2
Bergruimte
Soort
Voorzieningen
Ligging
Parkeer faciliteiten
Parkeervergunningen
Ligging
Aan water, In woonwijk
Onderhoud waardering
Binnen
Goed
Buiten
Goed

Bezichtiging aanvragen

    Van Doorn Makelaardij Utrecht

    Al 80 jaar is Van Doorn Makelaardij een begrip in Utrecht en omstreken. Ons team bestaat uit enthousiaste, betrokken en deskundige makelaars die alles afweten van de Utrechtse woningmarkt. We zijn aangesloten bij het NVM en beheersen alle facetten van het makelaarsvak. U kunt bij ons dan ook terecht voor het kopen, verkopen én taxeren van woningen in Utrecht.

    Makelaar Utrecht

    Onze diensten

    Over Van Doorn

    Contactgegevens

    Van Doorn Makelaardij Utrecht
    Poortstraat 49
    3572 HC Utrecht

    T: 030 276 9000
    W: 06 58 91 06 75
    E: info@van-doorn.nl

    Openingstijden

    Maandag: 09:00 tot 17:30
    Dinsdag: 09:00 tot 17:30
    Woensdag: 09:00 tot 17:30
    Donderdag: 09:00 tot 17:30
    Vrijdag: 09:00 tot 17:30

    © 2026 Alle rechten voorbehouden | Powered by iClicks