Terug naar resultaten

Utrecht – Oudwijkerveldstraat 63

€ 539.000,- k.k.

Over deze woning

Welkom in deze verrassend lichte en instapklare woning, gelegen in een rustige, karakteristieke straat met volop groen en een prettige buurtambiance. Hier komen modern wooncomfort en authentieke details prachtig samen. De afwerking is hoogwaardig en stijlvol, met veel oog voor detail, waardoor je je direct welkom voelt. Dankzij de prettige lichtinval, de plafondhoogte van maar liefst 3 meter op de begane grond, het slimme gebruik van ruimte en de open verbinding tussen binnen en buiten is dit een plek waar je jarenlang met plezier zult wonen.

De fijne tuin, het zonnige dakterras en de slimme voorzieningen maken dit huis een perfecte keuze voor wie waarde hecht aan comfort en gemak. Alles is instapklaar en luxe afgewerkt – je hoeft alleen nog maar je spullen mee te nemen.

Omgeving
Deze woning is gelegen in een van de meest geliefde, kindvriendelijke buurten van de stad. Hier woon je in een rustige straat met vrijwel alleen bestemmingsverkeer, waardoor kinderen veilig buiten kunnen spelen en je optimaal geniet van de rust en het groen om je heen. In de directe omgeving vind je alle dagelijkse voorzieningen: diverse supermarkten, speciaalzaken, scholen, kinderdagverblijven en sportverenigingen zijn allemaal op loopafstand bereikbaar. Voor wie houdt van gezelligheid zijn er tal van leuke horecagelegenheden, koffietentjes en restaurants in de buurt, waar je op elk moment van de dag terecht kunt voor een goede kop koffie, lunch of diner.

Het stadscentrum ligt op slechts enkele minuten fietsen, zodat je eenvoudig het bruisende stadsleven opzoekt, maar ook snel weer thuis bent in je eigen rustige omgeving. De ligging is daarnaast ideaal voor forenzen: uitvalswegen richting de snelweg zijn uitstekend bereikbaar en ook met het openbaar vervoer sta je binnen no-time op Utrecht Centraal of andere bestemmingen in de regio. Parkeren kan vaak voor de deur, en het groene karakter van de wijk met volwassen bomen en verzorgde tuinen zorgt voor een prettige, gemoedelijke sfeer waarin jong en oud zich direct thuis voelen.
Indeling van de woning

Begane grond:
Via de entree aan de voorzijde kom je binnen in een lichte hal met de trapopgang naar boven. De royale woonkamer springt direct in het oog dankzij de grote raampartijen aan de voorzijde, de dubbele openslaande deuren naar de tuin én het hoge plafond van 3 meter. Dit geeft een bijzonder ruimtelijk en licht gevoel. De prachtige schouw vormt een sfeervol middelpunt in de ruimte. Er is meer dan voldoende plek voor een gezellige zithoek én een royale eettafel. In de zomer zet je de openslaande deuren naar de tuin open en creëer je het echte binnen-buitengevoel.

De separate keuken is strak en modern ingericht, voorzien van inbouwapparatuur en stijlvolle details. Vanuit de keuken is er toegang tot het toilet en via de achterdeur bereik je de tuin.

Eerste verdieping:
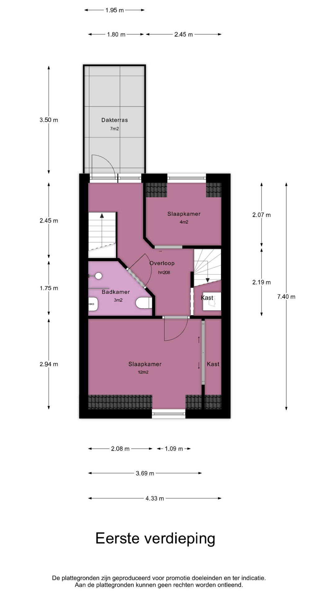
Via de overloop, met een ingebouwde kast waar tevens de wasmachineaansluiting is geplaatst, bereik je de eerste twee slaapkamers en de luxe badkamer. Beide kamers zijn aangenaam lichte ruimtes. De hoofdslaapkamer aan de voorzijde beschikt over een grote ingebouwde kast en biedt volop ruimte voor een tweepersoonsbed. De tweede, kleinere kamer aan de achterzijde leent zich uitstekend als werkkamer of logeerkamer. De badkamer is stijlvol afgewerkt en voorzien van een inloopdouche, wastafelmeubel, toilet en designradiator. Vanaf de overloop heb je bovendien direct toegang tot het zonnige dakterras op het zuiden.

Tweede verdieping:
De vaste trap leidt naar een derde slaapkamer onder de karakteristieke kap. Ook dit is een aangenaam lichte ruimte door de Velux dakramen. Op deze verdieping vind je bovendien veel bergruimte achter de knieschotten;

Buitenruimte:
De woning beschikt over twee heerlijke buitenruimtes, beide gelegen op het zonnige zuiden.

De achtertuin is onderhoudsvriendelijk aangelegd en vormt dankzij de openslaande deuren vanuit de woonkamer een natuurlijk verlengstuk van het woongedeelte. Hier is ruimte genoeg voor een comfortabele loungeset en een gezellige eettafel, zodat je op elk moment van de dag van de zon kunt genieten. Een sfeervolle overkapping maakt het mogelijk om ook op warmere of juist wat koelere dagen beschut buiten te zitten. Bovendien is er een praktische opbergruimte voor tuinkussens en gereedschap, waardoor alles altijd netjes opgeborgen kan worden.

Het dakterras aan de achterzijde is eveneens gunstig op het zuiden gelegen en vormt een ideale plek om in alle rust te ontspannen. Hier heb je volop zon en privacy, met ruimte voor ligstoelen of een intieme zithoek. Ook hier is slim gedacht aan bergruimte: een handige opberger maakt het gemakkelijk om kussens of andere accessoires op te bergen.

Bijzonderheden
– Instapklaar en hoogwaardig afgewerkt;
– Plafondhoogte begane grond ca. 3 meter;
– Airconditioning op de bovenverdieping, koelt alle kamers;
– Slimme, separate verwarming per slaapkamer (via app te bedienen);
– Verduisterende gordijnen in de slaapkamers;
– Zonnig dakterras op het zuiden;
– Onderhoudsvriendelijke tuin (ook zuid) met berging en overkapping;
– In de koopakte worden een asbestclausule en ouderdomsclausule opgenomen.

Meer lezen

Kenmerken

Financieel
Status
Verkocht
Prijs
€ 539.000,- k.k.
Bouw
Soort bouw
Eengezinswoning
Bouwjaar
1904
Oppervlakten en inhoud
Woonoppervlakte
71 m2
Gebouwgebonden buitenruimte
7 m2
Inhoud
262 m3
Indeling
Aantal kamers
4
Aantal badkamers
1
Aantal slaapkamers
3
Woonlagen
Energie en isolatie
Energieklasse
F
Warmwater
CV ketel
Verwarming
CV ketel
Isolatie
Vloerisolatie, HR glas
Einddatum
14 augustus 2030
Buitenruimte
Achterom
Nee
Type buitenruimte
7 m2
Bergruimte
Soort
Vrijstaand hout
Voorzieningen
Ligging
Parkeer faciliteiten
Betaald parkeren, Parkeervergunningen
Ligging
Aan rustige weg, In woonwijk
Onderhoud waardering
Binnen
Goed tot uitstekend
Buiten
Goed tot uitstekend

Bezichtiging aanvragen

    Van Doorn Makelaardij Utrecht

    Al 79 jaar is Van Doorn Makelaardij een begrip in Utrecht en omstreken. Ons team bestaat uit enthousiaste, betrokken en deskundige makelaars die alles afweten van de Utrechtse woningmarkt. We zijn aangesloten bij het NVM en beheersen alle facetten van het makelaarsvak. U kunt bij ons dan ook terecht voor het kopen, verkopen én taxeren van woningen in Utrecht.

    Makelaar Utrecht

    Onze diensten

    Over Van Doorn

    Contactgegevens

    Van Doorn Makelaardij Utrecht
    Poortstraat 49
    3572 HC Utrecht

    T: 030 276 9000
    W: 06 58 91 06 75
    E: info@van-doorn.nl

    Openingstijden

    Maandag: 09:00 tot 17:30
    Dinsdag: 09:00 tot 17:30
    Woensdag: 09:00 tot 17:30
    Donderdag: 09:00 tot 17:30
    Vrijdag: 09:00 tot 17:30

    © 2026 Alle rechten voorbehouden | Powered by iClicks