Terug naar resultaten

Utrecht – Palmstraat 17

€ 350.000,- k.k.

Over deze woning

Aan de Palmstraat 17 in de populaire wijk Wittevrouwen bevindt zich deze instapklare benedenwoning met een heerlijke achtertuin. Een woning waar sfeer, licht en een prettige indeling moeiteloos samenkomen. Het centrum, horeca en dagelijkse voorzieningen liggen letterlijk om de hoek, terwijl de straat zelf juist bekend staat om zijn prettige, rustige sfeer.

De woning heeft een klassieke en-suite indeling met een zitkamer aan de straatzijde en een eetkamer met open keuken aan de tuinzijde, gescheiden door fraaie suitedeuren. De plafondhoogte van circa 3 meter en de prettige lichtinval geven direct een heerlijk ruimtelijk en sfeervol karakter. Verder beschikt de woning over een slaapkamer en een badkamer. De tuin is dé plek waar het wonen hier echt extra leuk wordt: een heerlijke buitenruimte midden in de stad, perfect voor lange zomeravonden met vrienden, een goede borrel of een gezellige barbecue.

Omgeving:
De ligging is hier absoluut een plus. Wittevrouwen is levendig, charmant en helemaal van nu, een wijk waar karakter en stadse dynamiek vanzelf samenkomen. Vanaf de Palmstraat fiets je in enkele minuten naar het centrum van Utrecht, terwijl je in de directe omgeving juist geniet van de ontspannen sfeer die deze buurt zo geliefd maakt.

De Biltstraat ligt praktisch om de hoek en biedt een breed aanbod aan cafés, speciaalzaken en restaurants. Of je nu spontaan een drankje gaat doen bij Goesting of Café Proost, of jezelf trakteert op een ijsje bij Roberto Gelato, alles ligt hier binnen handbereik. Ook het Griftpark ligt dichtbij, ideaal voor een wandeling, sporten of gewoon even ontspannen buiten. De combinatie van karaktervolle straten, levendige horeca en alle voorzieningen dichtbij maakt dit een plek waar het stadsleven moeiteloos samenkomt met comfortabel wonen.

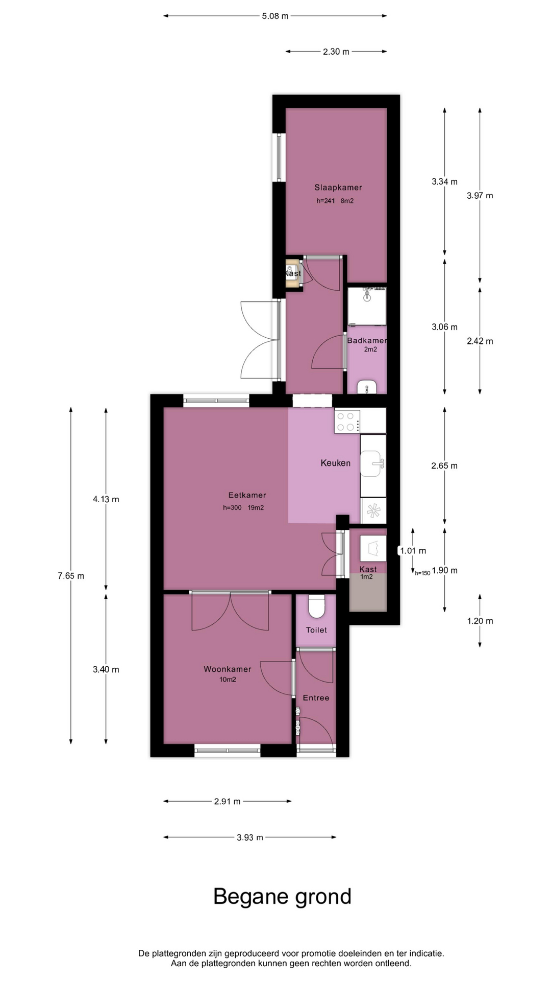
Indeling:
Je komt binnen in de gang met ruimte voor een garderobe. Vanuit hier heb je toegang tot het toilet en de royale kamer en-suite. Deze ruimte heeft een plafondhoogte van maar liefst circa 3 meter en aan weerszijden zorgen grote raampartijen voor een prachtige lichtinval. Aan de voorzijde ligt de zitkamer, met meer dan voldoende ruimte voor een comfortabele zithoek. Aan de achterzijde bevindt zich de eetkamer met open keuken, waar met gemak een grote eettafel past, een fantastische plek om te borrelen of uitgebreid te tafelen met vrienden en familie. De ruimtes zijn op een speelse manier met elkaar verbonden via de en-suite deuren: open zorgen ze voor één royale leefruimte, gesloten creëren ze juist twee prettige, afzonderlijke kamers.

De open keuken is voorzien van alle benodigde inbouwapparatuur en vormt een fijne plek om te koken zonder het contact met de rest van de leefruimte te verliezen. Naast de keuken bevindt zich een praktische inbouwkast met de aansluiting voor de wasmachine.

Vanuit de keuken kom je in de hal aan de achterzijde van de woning. Deze hal geeft toegang tot de nette badkamer, voorzien van een inloopdouche en wastafelmeubel, en tot de slaapkamer. De slaapkamer ligt aan de tuinzijde en is een aangenaam lichte ruimte met voldoende plek voor een comfortabel tweepersoonsbed en een royale kledingkast.

Via dezelfde hal heb je ook toegang tot de tuin. Een heerlijke buitenruimte waar je comfortabel kunt zitten, vrienden ontvangt voor een borrel en op mooie dagen tot in de late uurtjes van het buitenleven kunt genieten.

Bijzonderheden:
– Instapklare benedenwoning met royale tuin in de geliefde wijk Wittevrouwen;
– Gelegen op korte afstand van het centrum, horeca, winkels en het Griftpark;
– Woon- en eetkamer en-suite, met grote raampartijen, ca. 3 meter hoge plafonds;
– Keuken voorzien van alle benodigde inbouwapparatuur;
– Praktische inbouwkast met wasmachineaansluiting naast de keuken;
– Badkamer aan de achterzijde met inloopdouche en wastafelmeubel;
– Slaapkamer aan de rustige tuinzijde;
– Energielabel D;
– Oplevering kan snel;
– In de koopakte worden een asbestclausule, niet-zelfbewoningsclausule en een ouderdomsclausule opgenomen.

Meer lezen

Kenmerken

Financieel
Status
Onder bod
Prijs
€ 350.000,- k.k.
Bouw
Soort bouw
Bouwjaar
1900
Oppervlakten en inhoud
Woonoppervlakte
50 m2
Gebouwgebonden buitenruimte
0 m2
Inhoud
204 m3
Indeling
Aantal kamers
3
Aantal badkamers
1
Aantal slaapkamers
1
Woonlagen
1
Energie en isolatie
Energieklasse
D
Warmwater
CV ketel
Verwarming
CV ketel
Isolatie
Dakisolatie, Muurisolatie, Driedubbel glas
Einddatum
26 januari 2036
Buitenruimte
Achterom
Nee
Type buitenruimte
0 m2
Bergruimte
Soort
Voorzieningen
Ligging
Parkeer faciliteiten
Betaald parkeren, Parkeervergunningen
Ligging
Aan rustige weg, In woonwijk
Onderhoud waardering
Binnen
Goed
Buiten
Goed

Bezichtiging aanvragen

    Van Doorn Makelaardij Utrecht

    Al 79 jaar is Van Doorn Makelaardij een begrip in Utrecht en omstreken. Ons team bestaat uit enthousiaste, betrokken en deskundige makelaars die alles afweten van de Utrechtse woningmarkt. We zijn aangesloten bij het NVM en beheersen alle facetten van het makelaarsvak. U kunt bij ons dan ook terecht voor het kopen, verkopen én taxeren van woningen in Utrecht.

    Makelaar Utrecht

    Onze diensten

    Over Van Doorn

    Contactgegevens

    Van Doorn Makelaardij Utrecht
    Poortstraat 49
    3572 HC Utrecht

    T: 030 276 9000
    W: 06 58 91 06 75
    E: info@van-doorn.nl

    Openingstijden

    Maandag: 09:00 tot 17:30
    Dinsdag: 09:00 tot 17:30
    Woensdag: 09:00 tot 17:30
    Donderdag: 09:00 tot 17:30
    Vrijdag: 09:00 tot 17:30

    © 2026 Alle rechten voorbehouden | Powered by iClicks