Terug naar resultaten

Utrecht – Zacharias Jansenstraat 14

€ 650.000,- k.k.

Over deze woning

In de populaire Vogelenbuurt wacht deze unieke woning met zonovergoten tuin op het westen op nieuwe bewoners. De huidige eigenaren hebben de woning de afgelopen maanden met veel zorg en oog voor detail gemoderniseerd. Denk aan een spiksplinternieuwe keuken, een stijlvolle badkamer en fraaie nieuwe vloeren. Alles voelt fris, doordacht en helemaal van nu.

De royale woonkamer is een absolute blikvanger. Dankzij de grote raampartijen stroomt het daglicht rijkelijk naar binnen. De indrukwekkende plafondhoogte van maar liefst 3 meter versterkt het gevoel van ruimte en geeft de woonkamer een prachtige, open uitstraling. Aan de tuinzijde bevindt zich een fijne tuinkamer die perfect dienst kan doen als thuiswerkplek, atelier of rustige leeshoek. Daarnaast zijn er twee ruime slaapkamers en een praktische bergschuur. Alles wat je kunt wensen komt hier moeiteloos samen.

En dan de ligging… De Zacharias Jansenstraat 14 bevindt zich in de geliefde Vogelenbuurt: rustig wonen terwijl het levendige stadsleven zich letterlijk om de hoek afspeelt. Op loopafstand liggen de Voorstraat en de Adelaarstraat met een fijne mix van restaurants, koffietentjes en lokale speciaalzaken. Voor ontspanning wandel je binnen enkele minuten naar het Griftpark, ideaal voor een rondje hardlopen, een picknick of een zonnige middag in het groen. Supermarkten en dagelijkse voorzieningen zijn dichtbij en met het centrum van Utrecht en Utrecht Centraal op korte fietsafstand woon je hier op een plek waar werkelijk alles samenkomt.

Indeling:

Begane grond:
Je komt binnen in de hal met ruimte voor een garderobe en een praktische trapkast. Vanuit hier heb je toegang tot het toilet, de trap naar de eerste verdieping en de royale woonkamer.

De woonkamer strekt zich uit over de volledige diepte van de woning en is een heerlijke leefruimte. Aan de voorzijde zorgen de grote raampartijen voor veel daglicht, terwijl aan de achterzijde de openslaande deuren direct verbinden met de tuin. De combinatie van de prettige lichtinval en de indrukwekkende plafondhoogte van maar liefst 3 meter geeft de ruimte een bijzonder ruimtelijk en luchtig karakter. In het midden van de kamer vormt de authentieke schouw een charmant middelpunt dat warmte en karakter toevoegt. Er is volop plek voor een comfortabele zithoek én een grote eettafel waar je uitgebreid kunt dineren of borrelen met vrienden en familie. Op zonnige dagen zet je de openslaande deuren open en vloeien binnen en buiten moeiteloos in elkaar over.

Aan de achterzijde bevindt zich de open keuken, geplaatst in februari 2026. De keuken is modern uitgevoerd en van alle gemakken voorzien. Je vindt hier alle benodigde inbouwapparatuur, gecombineerd met veel berg- en werkruimte. De stijlvolle afwerking sluit mooi aan bij de rest van de woonruimte en maakt het plaatje in de ruimte helemaal compleet.

Direct grenzend aan de keuken bevindt zich de sfeervolle tuinkamer, een prachtige schakel tussen binnen en buiten. Dankzij de openslaande deuren kun je deze ruimte in de zomer volledig samenvoegen met de tuin. Zet alles open en je creëert een gezellige, beschutte plek waar je tot in de late uurtjes buiten kunt zitten, maar toch het comfort van binnen behoudt. Zie het als een overdekt terras waar je heerlijk kunt borrelen, dineren of rustig de dag afsluiten. Ook als het weer even omslaat, zit je hier aangenaam en beschut. Daarnaast leent deze ruimte zich perfect als licht thuiswerk-kantoor. Met de deuren open werk je bijna buiten, met de deuren dicht heb je een rustige, fijne werkplek met volop daglicht.

De tuin is gelegen op het westen, wat betekent dat je hier vanaf de middag tot in de avond heerlijk van de zon kunt genieten. Een fijne plek om na een werkdag nog even buiten te zitten of in het weekend uitgebreid te tafelen met vrienden. Achterin de tuin bevindt zich de praktische bergschuur, ideaal voor het opbergen van tuinspullen.

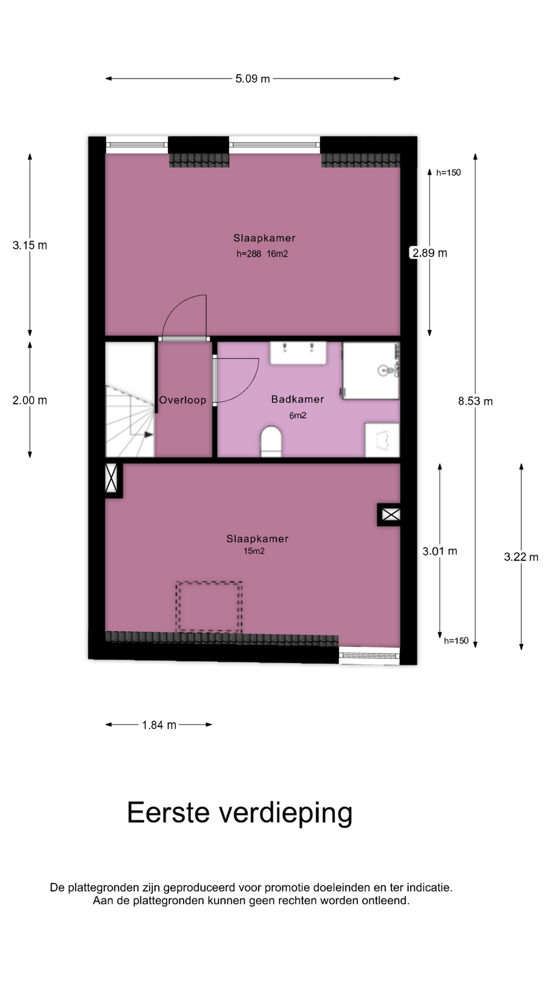
Eerste verdieping:
De overloop geeft toegang tot twee ruime slaapkamers en de badkamer. Beide kamers zijn prettig licht en bieden volop ruimte voor een comfortabel tweepersoonsbed en een grote kastenwand.

De luxe badkamer is recent vernieuwd en modern uitgevoerd. Je vindt hier een ruime inloopdouche, een dubbele wastafel met meubel, een toilet en de aansluiting voor de wasmachine.

Bijzonderheden:
– Recent gemoderniseerde woning met o.a. nieuwe open keuken (februari 2026), vernieuwde badkamer en fraaie nieuwe vloeren;
– Royale en lichte woonkamer met ca. 3 meter hoge plafonds, grote raampartijen, authentieke schouw en openslaande deuren naar de tuin;
– Tuinkamer met openslaande deuren, ideaal als licht thuiswerk-kantoor en in de zomer als gezellige, beschutte plek bij de tuin
– Zonovergoten tuin op het westen met praktische bergschuur;
– Twee ruime en lichte slaapkamers op de eerste verdieping;
– Gelegen in de geliefde Vogelenbuurt, op loopafstand van de Voorstraat, Adelaarstraat en het Griftpark;
– Centrum Utrecht en Utrecht Centraal op korte fietsafstand;
– In de koopakte worden een asbestclausule, ouderdomsclausule en niet-zelfbewoningsclausule opgenomen.

Meer lezen

Kenmerken

Financieel
Status
Beschikbaar
Prijs
€ 650.000,- k.k.
Bouw
Soort bouw
Eengezinswoning
Bouwjaar
1903
Oppervlakten en inhoud
Woonoppervlakte
92 m2
Gebouwgebonden buitenruimte
0 m2
Inhoud
340 m3
Indeling
Aantal kamers
4
Aantal badkamers
1
Aantal slaapkamers
2
Woonlagen
Energie en isolatie
Energieklasse
C
Warmwater
CV ketel
Verwarming
CV ketel
Isolatie
Dakisolatie, Muurisolatie, Vloerisolatie, Dubbelglas
Einddatum
31 december 2030
Buitenruimte
Achterom
Nee
Type buitenruimte
0 m2
Bergruimte
Soort
Aangebouwd hout
Voorzieningen
Voorzien van elektra
Ligging
Parkeer faciliteiten
Betaald parkeren, Parkeervergunningen
Ligging
Aan rustige weg, In woonwijk
Onderhoud waardering
Binnen
Goed tot uitstekend
Buiten
Goed

Bezichtiging aanvragen

    Van Doorn Makelaardij Utrecht

    Al 79 jaar is Van Doorn Makelaardij een begrip in Utrecht en omstreken. Ons team bestaat uit enthousiaste, betrokken en deskundige makelaars die alles afweten van de Utrechtse woningmarkt. We zijn aangesloten bij het NVM en beheersen alle facetten van het makelaarsvak. U kunt bij ons dan ook terecht voor het kopen, verkopen én taxeren van woningen in Utrecht.

    Makelaar Utrecht

    Onze diensten

    Over Van Doorn

    Contactgegevens

    Van Doorn Makelaardij Utrecht
    Poortstraat 49
    3572 HC Utrecht

    T: 030 276 9000
    W: 06 58 91 06 75
    E: info@van-doorn.nl

    Openingstijden

    Maandag: 09:00 tot 17:30
    Dinsdag: 09:00 tot 17:30
    Woensdag: 09:00 tot 17:30
    Donderdag: 09:00 tot 17:30
    Vrijdag: 09:00 tot 17:30

    © 2026 Alle rechten voorbehouden | Powered by iClicks