Terug naar resultaten

Utrecht – Zonstraat 50

€ 475.000,- k.k.

Over deze woning

Op misschien wel een van de mooiste plekjes van Utrecht, in de geliefde wijk Oudwijk, komt misschien wel het gezelligste huis van de stad beschikbaar. Gelegen aan een idyllische straat met een charmant grachtje direct voor de deur voelt dit als een verborgen parel midden in de stad. Een woning waar je binnenkomt en eigenlijk meteen wilt blijven.

De sfeer is hier vanaf het eerste moment voelbaar. Authentieke details zoals prachtige glas-in-loodramen, warme houten vloeren, een werkende haard met karaktervolle schouw en originele en-suite kasten geven de woning karakter en warmte. De leefruimte is heerlijk licht en vormt een fijne plek om thuis te komen, met openslaande deuren die zorgen voor een directe verbinding met de ruime tuin.

De stijlvolle keuken sluit mooi aan op de leefruimte en is praktisch en verzorgd uitgevoerd. Verder beschikt de woning over twee goed bemeten slaapkamers, een nette badkamer met dubbele wastafel en een praktische bergvliering van bijna 10m2 voor extra bergruimte.

Dit alles ook nog op een geweldige locatie. De Zonstraat ligt in de geliefde wijk Oudwijk, een van de meest karaktervolle en populaire plekken van Utrecht. Je woont hier in een rustige, sfeervolle straat met weinig verkeer, waar het grachtje en het groene karakter zorgen voor een bijna dorpse setting midden in de stad.

Op korte afstand vind je het Wilhelminapark, een van de mooiste parken van Utrecht, perfect voor een wandeling of een rondje hardlopen. Ook de Burgemeester Reigerstraat en Nachtegaalstraat liggen dichtbij, met een breed aanbod aan winkels, speciaalzaken en goede horecazaken. De binnenstad en het Ledig Erf bereik je binnen enkele minuten fietsen, waardoor je hier de perfecte balans vindt tussen rust en levendigheid. Daarnaast is de bereikbaarheid uitstekend, met zowel het Centraal Station als uitvalswegen richting de A27 en A28 snel bereikbaar.

Indeling:

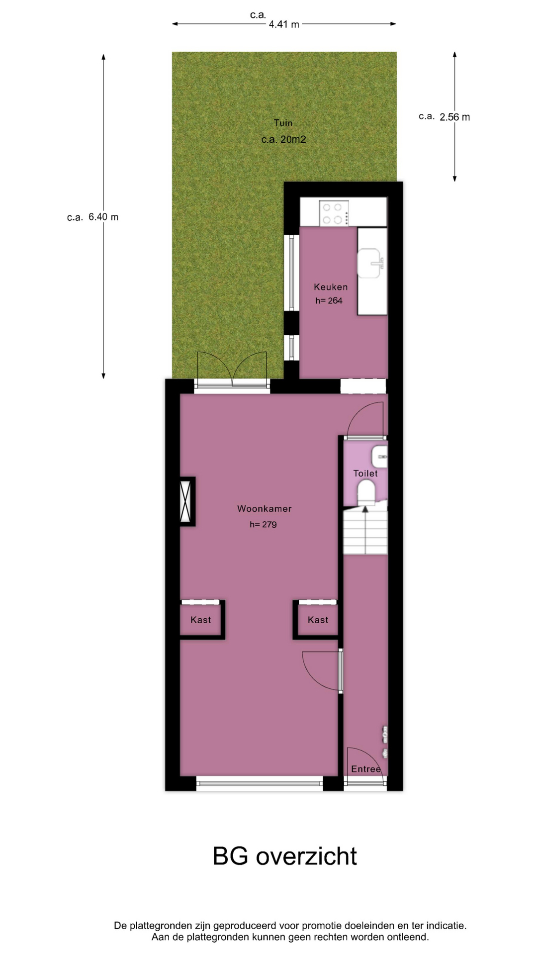
Begane grond:
Je komt binnen in de gang met ruimte voor een garderobe en toegang tot het toilet en de woonkamer.

De woonkamer is een fijne, sfeervolle ruimte waar direct de warme houten vloeren en de authentieke details opvallen. De haard met schouw vormt een mooi middelpunt en geeft de ruimte extra karakter. Aan de achterzijde zorgen de openslaande deuren voor veel licht en een prettige verbinding met de tuin.

Aan de voorzijde bevindt zich de eetkamer, afgescheiden door de originele en-suite met vaste kasten. Een charmante plek met prachtige glas-in-loodramen, waar het licht op een mooie manier naar binnen valt en de sfeer van de woning volledig tot zijn recht komt. Er is hier alle ruimte voor een grote eettafel, perfect voor lange, gezellige avonden met vrienden en familie.

Vanuit de woonkamer loop je door naar de keuken aan de achterzijde. De keuken is charmant en sluit perfect aan bij het karakter van de woning en is voorzien van alle benodigde (inbouw)apparatuur. Het raam zorgt hier voor prettig daglicht en zicht op de tuin.

De achtertuin is verzorgd aangelegd en biedt een fijne, beschutte plek om buiten te zitten. Dankzij de ligging en de omliggende bebouwing voelt het hier rustig en privé, een prettige plek om even tot rust te komen na een drukke dag. Er is meer dan voldoende ruimte voor een heerlijke lounge hoek en een tuintafel, met lekker weer is dit dan ook dé plek om te vertoeven met een hapje en een drankje.

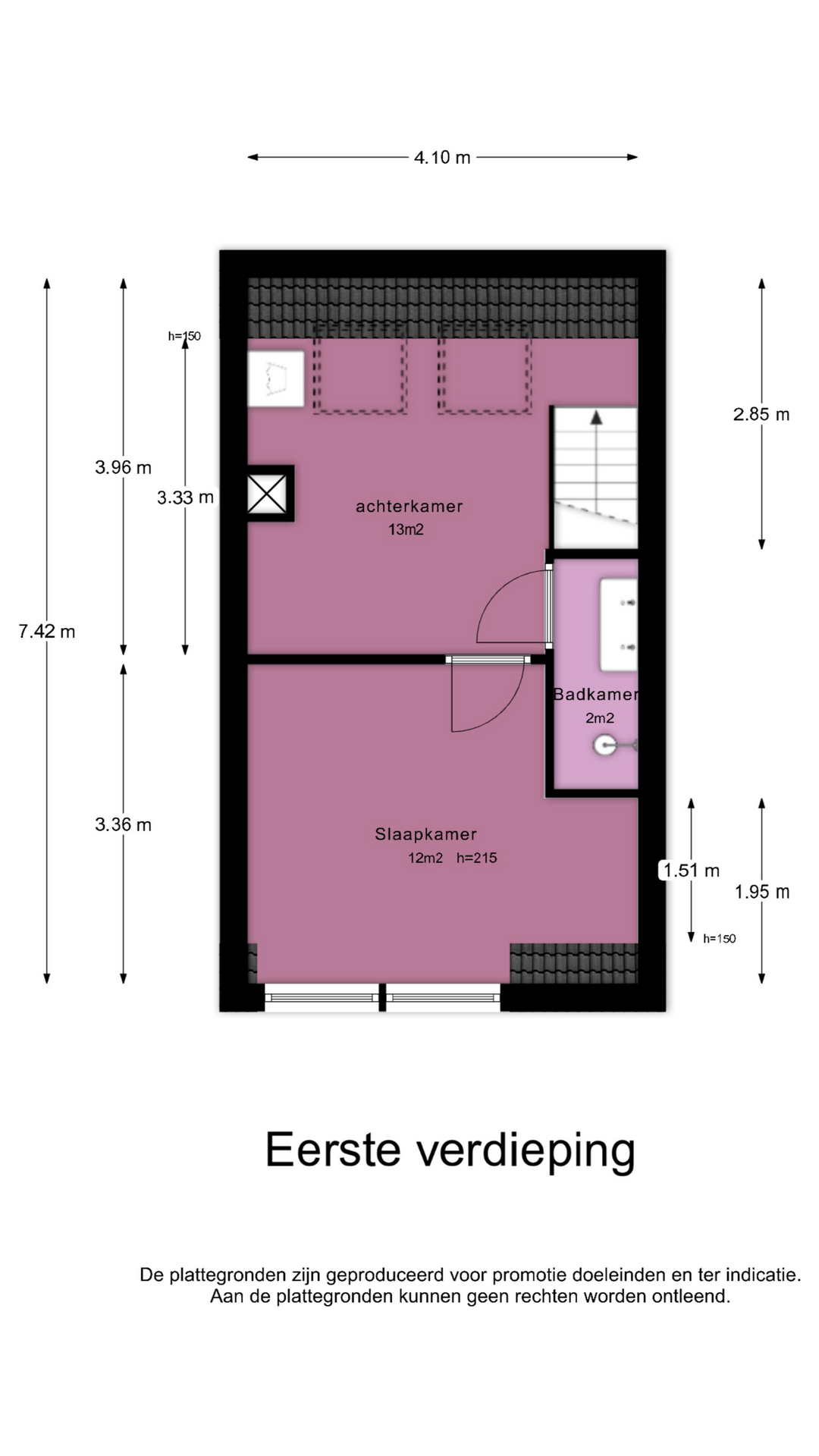
Eerste verdieping:
Via de trap bereik je de eerste verdieping, waar je binnenkomt in een ruime kamer aan de voorzijde. Wat hier meteen opvalt is het vele licht, de zichtbare balken en de indrukwekkend hoge nok. Deze kamer is flexibel in te richten, bijvoorbeeld als werkplek, kleedruimte of extra slaapkamer.

Vanuit deze ruimte heb je toegang tot de slaapkamer aan de achterzijde. Ook dit is een fijne kamer met voldoende ruimte voor een comfortabel tweepersoonsbed en een grote kledingkast.

De badkamer is vanuit de voorste kamer bereikbaar en is voorzien van een douche en dubbele wastafel met meubel.

Bijzonderheden:
– Gelegen in de geliefde wijk Oudwijk;
– Rustige, sfeervolle straat met grachtje voor de deur;
– Authentieke details zoals glas-in-loodramen en en-suite kasten;
– Warme houten vloeren en werkende haard met schouw;
– Lichte woonkamer met openslaande deuren naar de tuin;
– Charmante keuken voorzien van alle benodigde (inbouw)apparatuur;
– Twee goed bemeten slaapkamers;
– Zichtbare balken en hoge nok op de eerste verdieping;
– Praktische bergvliering aanwezig van bijna 10m2;
– Ruime, beschutte achtertuin met plek voor loungehoek;
– Op korte afstand van Wilhelminapark, Burgemeester Reigerstraat en binnenstad;
– Goede bereikbaarheid richting Centraal Station en uitvalswegen;
– In de koopakte worden een asbestclausule en ouderdomsclausule opgenomen.

Meer lezen

Kenmerken

Financieel
Status
Onder bod
Prijs
€ 475.000,- k.k.
Bouw
Soort bouw
Eengezinswoning
Bouwjaar
1928
Oppervlakten en inhoud
Woonoppervlakte
65 m2
Gebouwgebonden buitenruimte
0 m2
Inhoud
205 m3
Indeling
Aantal kamers
3
Aantal badkamers
1
Aantal slaapkamers
2
Woonlagen
Energie en isolatie
Energieklasse
C
Warmwater
CV ketel
Verwarming
CV ketel
Isolatie
Dakisolatie, Dubbelglas
Einddatum
12 december 2032
Buitenruimte
Achterom
Nee
Type buitenruimte
0 m2
Bergruimte
Soort
Voorzieningen
Ligging
Parkeer faciliteiten
Betaald parkeren, Parkeervergunningen
Ligging
Aan rustige weg, In woonwijk
Onderhoud waardering
Binnen
Goed
Buiten
Goed

Bezichtiging aanvragen

    Van Doorn Makelaardij Utrecht

    Al 80 jaar is Van Doorn Makelaardij een begrip in Utrecht en omstreken. Ons team bestaat uit enthousiaste, betrokken en deskundige makelaars die alles afweten van de Utrechtse woningmarkt. We zijn aangesloten bij het NVM en beheersen alle facetten van het makelaarsvak. U kunt bij ons dan ook terecht voor het kopen, verkopen én taxeren van woningen in Utrecht.

    Makelaar Utrecht

    Onze diensten

    Over Van Doorn

    Contactgegevens

    Van Doorn Makelaardij Utrecht
    Poortstraat 49
    3572 HC Utrecht

    T: 030 276 9000
    W: 06 58 91 06 75
    E: info@van-doorn.nl

    Openingstijden

    Maandag: 09:00 tot 17:30
    Dinsdag: 09:00 tot 17:30
    Woensdag: 09:00 tot 17:30
    Donderdag: 09:00 tot 17:30
    Vrijdag: 09:00 tot 17:30

    © 2026 Alle rechten voorbehouden | Powered by iClicks